Skip to main content
Top

Thermal Analysis of Composite Slabs Based on Experiment and Numerical Simulations

  • Open Access
  • 31-08-2024
Published in:

Activate our intelligent search to find suitable subject content or patents.

search-config
loading …

Abstract

The study focuses on the thermal analysis of composite slabs subjected to fire conditions, combining experimental data and numerical simulations. Six composite slabs with different dimensions were exposed to standard fire curves, and their temperature distributions were measured. The experiments revealed significant water vaporization and condensation effects, as well as detachment between the steel deck and concrete. Numerical simulations were developed to model these effects accurately, considering radiation heat transfer and temperature-dependent emissivity. The validated model provides reliable predictions for the thermal performance of composite slabs, which is crucial for understanding and predicting their structural behavior under fire conditions. The research highlights the importance of considering detachment phenomena and the influence of slab geometry on temperature development, contributing to the development of more accurate design approaches for composite slabs.

Publisher's Note

Springer Nature remains neutral with regard to jurisdictional claims in published maps and institutional affiliations.

1 Introduction

1.1 Background of the Research

In steel building construction, composite slabs are one of the most often utilized structural elements. In a composite slab system, concrete is cast on a steel deck. In comparison to equivalent reinforced concrete floor systems, composite slab can provide effective and lightweight solutions and can be constructed without shoring. The presence of the ribs generates an orthotropic profile, which leads to thermal and structural responses that are more complicated than those of flat slabs. This presents difficulties in the context of numerical analysis and practical design for fire effects. In addition, composite slab systems are vulnerable to failure under fire conditions because under high temperature effect, steel deck deterioration and its detachment from concrete slab cause non-composite slab behavior [1, 2], which makes the performance more difficult to be predicted. The Eurocode 4 [3], hereafter referred to as EC4, specifies that the mechanical and thermal properties of concrete and steel, including thermal conductivity, specific heat, thermal elongation, and strength reduction factor, are temperature dependent. Therefore, it is critical that structural fire safety designers have the capability to forecast the temperature distribution of the type of structure in the event of a fire.
In order to assess the fire resistance of these particular structures, standard fire tests are typically employed, for instance ASTM E119 [4], and ISO 834 [5]. TNO (Netherlands) began an ECSC research project in 1989 with 25 experiments by Hamerlinck et al. [6] to investigate composite slab thermal and structural behavior. Twelve tests on two-dimensional thermal responses demonstrated that profiled steel deck shape considerably affects composite slab temperature distribution. The authors verified a thermo-mechanical model for fire-exposed composite slabs with fire tests. To represent radiative heat exchange between the fire environment and steel deck, an artificial void was introduced. Thus, Both [7, 8] used 2D thermal models to parametrically adjust slab shape. After considering the thermal insulation criteria, reinforcement and decking temperatures, and isotherms, approximative closed-form formulas were proposed for composite slab fire resistance which are incorporated in Annex D of EC4 [3]. The authors used old thermal property estimates in their numerical modeling, which deviate from EC4. This may partially explain nodal temperature differences. An investigation was carried out by Lim [2] to assess the thermal and structural behavior of composite floor systems, which included trapezoidal and flat-deck composite slab. Guo and Bailey [9] tested composite slabs under actual fire heating and cooling. Results showed that cooling rate, maximum temperature, and heating rate affect composite slab behavior. The unexposed slab and reinforcing mesh reached their maximum temperature during the fire's cooling phase. A followed numerical study [10] evaluated the influence of concrete strength, steel deck thickness, and reinforcing mesh size on the composite slab behavior in fire. The results showed that the fire resistance of the composite slab was significantly affected by the thickness of the steel deck. Guo-Qiang Li et al. [11] experimentally examined the impact of boundary conditions, slab layout, reinforcement location, and unprotected secondary beams on the development of tensile membrane action by testing four composite slabs. Kordosky [12] studied the fire resistance of partially restrained partially composite floor beams.
Most of the prior research on the behavior of composite slabs in fire conditions, however, has focused on the structural response, with thermal analysis of the slab being as a structural model input. Few studies have been concentrated on the systematic analysis of composite slabs' temperature distribution [13]. Recently Piloto et al. [14] investigated the thermal insulation behavior of composite slabs under fire conditions. Two samples were tested using ISO 834 standard fire curve [5] to evaluate the integrity and insulation. Bolina et al. [1] conducted thermal analysis in composite slabs by performing real-scale fire tests on eight composite slabs with numerical models calibrated with experimental temperature distribution data and made amendments to the negative rebar temperatures in EC4.
However, thermal models in previous studies considered detachment by introducing an air layer and calculating heat transfer from the steel deck to the concrete within the gap through conduction. This approach does not accurately reflect the actual conditions, as the heat transfer within the detachment gap occurs primarily through radiation, according to Sharma et al. [15]. This discrepancy leads to differences up to 200°C between numerical data and experimental data in previous studies, particularly in the locations at the bottom layers. Furthermore, those studies on thermal response of composite slab only considered single slab dimension in their experiments. This raises the question of whether thermal models will be accurate for composite slabs of varying sizes, especially when geometric parameters significantly influence temperature development [13]. Piloto et al. [16] verified their thermal model with four experimental datasets from the literature. In order to have the numerical data closely matched the experimental data, the proposed air layer thickness in their previous thermal models [14] had to be adjusted. Jian et al. [13] developed a detailed model and validated it against two experimental datasets. Although one validation was effective, the other revealed discrepancies between the experimental data and the numerical data at the concrete bottom layer. This brings out the necessity of a thermal analysis model that accurately validated against a variety of composite slab geometries experimental data and well treat the detachment phenomena.

1.2 Contribution of the Research

This study conducts experiments on the thermal performance of six unloaded composite slabs with different geometries subjected to the ISO 834 standard fire curve until all tested slabs reach insulation limit. Test observations, temperature distribution data, and the thermal response of the tested slabs under fire conditions will be presented. Since in Japan, to the best of our knowledge, experiments on the behavior of composite slabs under fire conditions are frequently limited to a duration of two hours, during which the composite slabs normally have not reached the insulation limit, and the specimens that were tested are of comparable size. Therefore, the novel experimental data from this study can be utilized for future studies on development of design approach to predict the insulation limit time of composite slabs in Japan, as the official Japanese design code currently do not include this aspect.
The data obtained from experiment were used to validate the numerical model developed subsequently. This numerical modeling method well treated the detachment between steel deck and concrete as it considered radiation heat transfer, the temperature-dependent emissivity of the galvanized steel deck results from melting of a zinc coating in both side and the influence of detachment depth in modeling. The model is validated with experimental data from six tested slabs to ensure its accuracy and applicability to other cases when the size of the composite slab varies, particularly given the diversity in dimensions of composite slabs in current practice. In the future, the thermal model developed in this study can be utilized for mechanical analysis of composite slabs. The precision of this thermal model ensures reliable predictions, which are essential for understanding and predicting structural performance. Additionally, this model can facilitate further studies on composite structures, and parametric studies to explore the effects of various parameters on the thermal–mechanical response of composite floor systems.

2 Experiment Programme

2.1 Test Specimen

Six composite slabs with different sections, namely H50-60, H50-80, H50-100, H75-60, H75-80, and H75-100 were prepared. The experiment utilized two types of galvanized steel deck: S50-12 and S75-12, with cross-section heights of 50 mm and 75 mm, respectively. The thickness of both steel deck types was 1.2 mm. To investigate the temperature distribution at various concrete depths, the experiment considered three values of height of the upper continuous portion of the slab: 60 mm, 80 mm, and 100 mm. The detail cross-sectional dimensions and designated names of each composite slab are shown in Fig. 1 and Table 1.
Figure 1
Slab geometry indicator
Full size image
Table 1
Slab Geometry (unit: mm)
Slab designated name
H
B
h1
h2
l1
l2
H50-60
110
300
60
50
170
125
H50-80
130
300
80
50
170
125
H50-100
150
300
100
50
170
125
H75-60
135
300
60
75
175
120
H75-80
155
300
80
75
175
120
H75-100
175
300
100
75
175
120
The tested composite slabs had dimensions of 1.3 m in length and 1.2 m in width. Slab reinforcement (provided primarily to control cracking in the transverse direction) consists of 150 × 150 mm welded wire reinforcement placed 30 mm below the top surface of the slabs. A photo of the composite deck before concrete placement is provided in Fig. 2.
Figure 2
Isometric photo of the specimens before concrete placement
Full size image
All six slabs were positioned adjacent to each other and installed over a steel frame, which was thermally insulated with calcium silicate boards and protective fiber blankets. Hot rolled C-200 × 90 × 8 × 13.5 steel beams were used to assemble the support frame. The purpose of this assembly work was to test all six slabs at once. There were layers of fiber blanket between slabs for thermal insulation. The composite floor specimen serves as the lid of the furnace, as shown in Figs. 3 and 4.
Figure 3
Composite slabs ready for experiment
Full size image
Figure 4
Test specimen set up
Full size image

2.2 Material Properties

All slabs were casted with Japanese ready-mixed normal concrete. Concrete strength was obtained as the average of three cylinders tested at 28 days and the result was 22.4 MPa. The concrete mix proportions are given in Table 3. Table 2 show the results of moisture content tests which were measured at experiment day as the moisture content of concrete plays an important role in the heat transfer within the concrete exposed to fire (Table 3).
Table 2
Moisture Content
Slab
H50-60
H50-80
H50-100
H75-60
H75-80
H75-100
Moisture content (%)
4
3.8
4.1
3.9
3.9
4
Table 3
Concrete Mix
Material
Cement
Water
5mm Gravel
Sand
20 ~ 5mm Gravel
Water reducing admixture
Mixing in weight
(kg/m3)
250
175
582
310
1006
2.5
The profiled steel deck was the galvanized type and used steel with standard yield strength fy = 235 MPa, and standard ultimate strength fu = 400 MP.

2.3 Test Setup

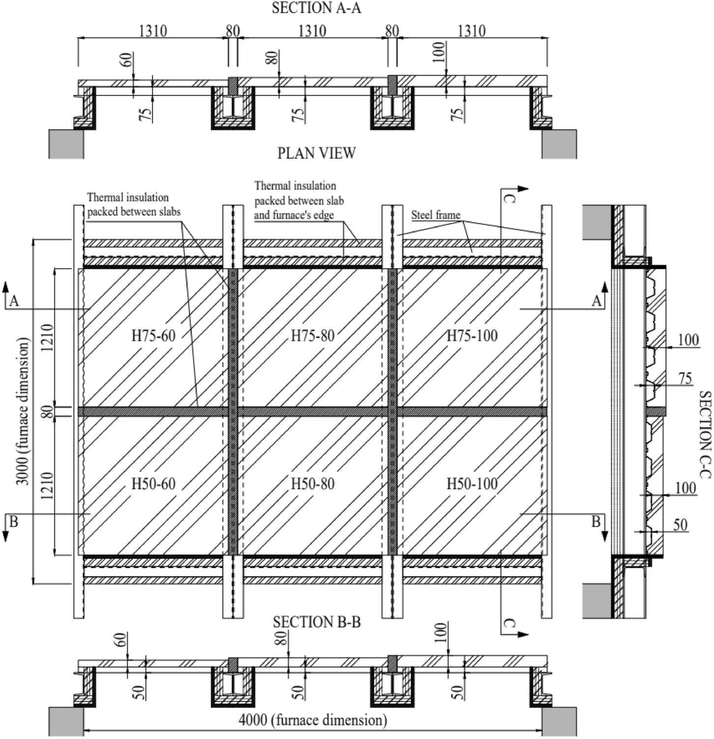
The experiment was conducted using the furnace in Center for Fire science and Technology, Tokyo University of Science, Japan. This furnace is used to verify the fire resistance performance of various structural members such as beams, floors, and so on. This can heat up to a 3 m × 4 m area and depth of furnace is 3.5 m. There are 16 burners on each east and west side, as indicated in Fig. 5.
Figure 5
Experiment furnace
Full size image
Inside the composite slabs, 42 thermocouples were placed to measure the temperature distribution over the cross-section, as shown in Fig. 6. There was a total of seven thermocouples in each slab: four in the bottom flange section, three in the top flange section, which were placed in the mid-span of the middle strip. In order to prevent any displacement of thermocouples situated within the concrete layer during the pouring process, aluminum tape was used to fix the lowest thermocouple to the steel deck. The thermocouples in middle height were attached to additional rebars as illustrated in Fig. 8. The top thermocouple was affixed to the top surface of the concrete after concrete consolidation. In each temperature measured section, thermocouples were evenly located at regular intervals throughout the concrete layers. The cross-sectional allocation of thermocouples is shown in Fig. 7.
Figure 6
Plan view of thermocouples’ allocation
Full size image
Figure 7
Thermocouples’ location in cross-section
Full size image
The furnace temperature followed ISO 834 standard fire curve [5]. The experiment was conducted for three and a half hours (until temperatures of unexposed surface in all tested slabs exceeded 200°C). This ensured that the all slabs met the thermal insulation limit, considering that the recorded room temperature on the day of the experiment was 10°C. Current standards define fire resistance based on the thermal insulation criterion as the duration necessary for the unexposed surface of the slab to experience maximum temperature increase of 180°C or an average temperature rise of 140°C, whichever occurs first, under a standard fire (Fig. 8). During experiment, unexposed surface of slab H50-60 and H75-60 were covered by fire protection blanket after 130 min and 175 min, respectively, as shown in Fig. 9, to protect above equipment as maximum recorded temperature of those surfaces got over 350°C at the mentioned time.
Figure 8
Thermocouples’ installation
Full size image
Figure 9
Fire protection blanket placement
Full size image

3 Experimental Result

Fig. 10 provides a plot of all internal furnace thermocouples temperatures from the test which closely followed ISO 834 standard fire curve [5].
Figure 10
Furnace temperature
Full size image

3.1 Test Observation

The moisture release was observed during heating. At about 9 min, the water vapor started releasing from two ends of the thinnest slab H50-60 and then followed by other slabs. At about 20 min, the water condensation started to appear at the middle of H50-60’s unexposed surface near the top thermocouple’s location, see Fig. 11a. Afterward, a significant amount of water vapor emitted out and water spot gradually distributed over the top surface of test specimen, as shown in Fig. 11b.
Figure 11
Observation of water during test
Full size image
After the fire test, the color of the steel deck turned from silver to black, though they did not melt, as shown in Fig. 12. It also can be seen in Fig. 13 that after the experiment, the steel deck deboned from the concrete, with the maximum measured distance being approximately 10 mm.
Figure 12
Steel deck after experiment
Full size image
Figure 13
Detachment phenomena
Full size image

3.2 Test Result

The temperature evolutions at different locations of all the tested slabs are presented in Figs. 14, 15 and 16. In this section, only the experimental data for H50-60, H50-100, and H75-100 slabs are presented as other slabs exhibit similar patterns in terms of data trends. As expected, the temperatures in all thermocouples rose with time, and lower temperatures were observed at higher positions within the concrete layer. At 130 min, the temperature development of thermocouples 1 and 5 of H50-60 slab changed suddenly due to the placement of fire protection on the unexposed surface of the slab to protect the equipment above as mentioned previously. For the temperatures at the unexposed surface, thermocouples above top flange had higher temperatures than those above bottom flange in the same slab because the concrete layer above bottom flange is thicker (see Fig. 20). There were differences in the temperatures at the bottom layer of concrete between the bottom and top flange portions of the slab, as shown in Fig. 17. This discrepancy is due to the rib's thermal shielding effect. The temperature at the bottom surface of concrete was significantly lower than the furnace temperature. Detachment phenomena observed between the steel deck and the concrete after the test are believed to have contributed to these discrepancies.
Figure 14
Time–temperature curve of H50-60 slab
Full size image
Figure 15
Time–temperature curve of H50-100 slab
Full size image
Figure 16
Time–temperature curve of H75-100 slab
Full size image
Figure 17
Temperature at bottom surfaces of slabs
Full size image
It can also be seen that in all tested slabs, the temperatures of the concrete layers near the top surface of each of the tested slabs continue to rise after the heating stops.
The temperature on the unexposed surface is affected by the concrete depth (see Figs. 18 and 19), with temperatures decreasing as the concrete depth increases. However, the effect of the steel deck’s height on top surface’s temperature is minor (see Fig. 20).
Figure 18
Concrete depth effect (H50 slabs)
Full size image
Figure 19
Concrete depth effect (H75 slabs)
Full size image
Figure 20
Steel deck height effect
Full size image
Due to the moisture evaporation and movement, the temperature evolution within the concrete experienced a stable phase at around 100°C except for the point at the bottom layers. This temperature plateau was significant for unexposed surface due to the appearance of hot water condensation adhering to top thermocouples.
Figure 11a shows the water condensation at unexposed surface of slab H50-60. This photo was taken approximately 20 min after the heating started, corresponding to the time when the temperatures of thermocouples 1 and 5 suddenly increased (see Fig. 14) and initiated the temperature plateau.

4 Numerical Simulation

4.1 Simulation Parameters

The numerical simulations were performed with the Abaqus [17]. Although three-dimensional analyses were performed, with multiple rows of solid elements in the longitudinal direction (i.e., in the direction of the ribs), only two-dimensional heat transfer models were considered in this study for saving computational expense as the thermal loading and the resulting temperatures were uniform in the longitudinal direction.
The components, i.e., steel deck and concrete slab, were modeled using DC2D4 element type, which was a 2-D, 4-node quadrilateral, heat transfer element. Adiabatic boundary conditions were assigned at the right and left boundaries of the models.
On the top surface of the slab, heat loss to the ambient temperature of 10°C (as measured in experimental site at the time experiment was conducted) was represented by convection and radiation. The convective coefficient, hc, was set to 4 W/m2.K, and the thermal emissivity, εc, was set to 0.90, as suggested in the recommendations of the Architectural Institute of Japan (AIJ) [18]. Additionally, the view factor was assumed to be equal to 1.
On the bottom surface of the slab, heating by the ISO 834 standard fire curve [5] was considered, incorporating convection (with a convective coefficient of hc = 25 W/m2.K) and radiation. Calculation of radiation at bottom surface was complex due to the trapezoidal configuration of the slab and the melting phenomena of the zinc layer coating the steel deck. The view factor of the bottom flange of steel decking is generally taken as unity, Φb = 1.0. The view factors for the web and upper flange of the steel deck are less than unity due to obstruction from the ribs. These can be calculated following the Hottel's crossed-string method [19], which is also the approach adopted by EC4 [3] and the research of Jian [13]. Resulting expressions for the view factors of the top flange and the web of the steel deck, denoted Φt and Φw, respectively, are presented as following:
$$\Phi_{t} = \frac{{\sqrt {h_{2}^{2} + \left( {l_{3} + \frac{{l_{1} - l_{2} }}{2}} \right)^{2} } - \sqrt {h_{2}^{2} + \left( {\frac{{l_{1} - l_{2} }}{2}} \right)^{2} } }}{{l_{3} }}$$
(1)
$$\Phi_{w} = \frac{{\sqrt {h_{2}^{2} + \left( {\frac{{l_{1} - l_{2} }}{2}} \right)^{2} } + \left( {l_{3} + l_{1} - l_{2} } \right) - \sqrt {h_{2}^{2} + \left( {l_{3} + \frac{{l_{1} - l_{2} }}{2}} \right)^{2} } }}{{2\sqrt {h_{2}^{2} + \left( {\frac{{l_{1} - l_{2} }}{2}} \right)^{2} } }}$$
(2)
where h1, h2, l1, l2, and l3 are the geometric parameters as illustrated in Fig. 1.
For the emissivity, Hamerlinck [6] suggested a value of 0.1 at temperatures lower than 400°C, which increased to 0.4 at 800°C. This recommendation takes into account that the zinc surface of the galvanized layer strongly reflects the radiation at low temperatures, and the zinc begins to melt at 400°C, eventually disappearing and revealing bear steel at 800°C. Jian [13] proposed a value of emissivity of 0.1 for temperatures below 400°C, and 0.7 for temperatures above 800°C. For temperatures between 400 and 800°C, a linear variation between 0.1 and 0.7 was suggested. This approach aligns with the temperature-independent emissivity of steel deck recommended in EC4 [3], which is 0.7. In this study, the emissivity of the steel deck under 400°C was maintained at 0.1. However, since Japanese products were utilized, when the temperature exceeded 800°C, the value was set to 0.6, consistent with the temperature-independent emissivity of steel recommended in the AIJ recommendation [18]. For temperatures between 400 and 800°C, a linear interpolation was employed. These values resulted in the most accurate predictions in terms of temperature profiles within the composite slabs, as depicted in Fig. 21. The emissivity values for the three methods are illustrated in Fig. 22.
Figure 21
Emissivity value
Full size image
Figure 22
Comparison of H50-100 slab’s concrete temperature at bottom surface considering various emissivity value
Full size image
The heat flux received by the composite slab from the furnace and the heat loss at the top surface are modeled using a user subroutine FILM in Abaqus [17]. This subroutine incorporates both radiation and convection modes of the heat transfer process (Fig. 23).
Figure 23
Comparison of H50-100 slab’s concrete temperature with various mesh size
Full size image

4.2 Mesh analysis

A mesh size analysis was conducted, considering various dimensions for the slab mesh: 5 × 5 mm, 10 × 10 mm, 15 × 15 mm, and 20 × 20 mm. Fig. 24 shows a comparison of the calculated temperatures at several specific locations, including the bottom position of the bottom flange section and the top position of the bottom flange section, for the H50-100 slab case using the four different mesh sizes. There are minor differences between the data obtained with different mesh sizes. Therefore, a mesh size of 10 × 10 mm was chosen for use in all composite slab models. This choice was made to minimize computational time required for calculations and ensure precise node selection in conjunction with the corresponding locations of thermocouples.
Figure 24
Comparison of H50-100 slab’s concrete temperature at bottom surface with various detachment depth
Full size image

4.3 Detachment Depth

Early in the fire exposure, as observed in the experimental tests, the profiled steel deck separated from the concrete slab [2]. The maximum measured detachment depth was approximately 10 mm. This detachment had a direct impact on the isotherms within the slab cross-section and was considered in the numerical model as a cavity. An analysis was conducted to investigate the effect of detachment depth on temperature development inside the composite slab. Six values of detachment depths were considered: 15 mm, 10 mm, 5 mm, 1 mm, 0.5 mm, and 0 mm (representing perfect contact). Fig. 25 shows the comparison of calculated concrete temperature at bottom surface location of the H50-100 slab for each detachment depth. It is evident that minor differences exist between temperature data for detachment depths ranging from 0.5 mm to 15 mm, while significant differences are observed compared to the case of perfect contact. This suggests that detachment phenomena should be taken into account when modeling composite slab under elevated temperatures. In this study, a detachment depth of 1 mm was adopted.
Figure 25
Numerical simulation parameter
Full size image
The detachment phenomena pose challenges for accurately modeling heat transfer at the interface between the concrete slab and the steel deck. Consequently, many researchers have developed methods to address this challenge. Lim [2] used FE-based numerical simulations to investigate the thermal performance of composite slabs. In his simulations, he assumed perfect contact between the steel deck and concrete slab. However, the numerical simulations data yielded slab temperatures significantly higher than those measured. The steel deck debonding and buckling from the concrete slab generated this disparity. Guo [10] modeled the interface insulation by incorporating a conductive interface layer. He estimated a conductivity of 0.8 W/m.K for a 1 mm-thick contact. This conductivity value is equivalent to a conductance of 800 W/m2 K. His FE analysis results overestimated the temperatures of the concrete bottom surface by up to 100°C. Thus, new methods have been developed to study the insulation effect resulting from the detachment of the steel deck and concrete slab, as demonstrated by Sharman et al. [15]. In their model, the gap radiation function in Abaqus [15] was employed to address the interface problem. However, their model neglected to account for the temperature-dependent emissivity of galvanized steel deck, a critical parameter identified by Jian [13].
In this study, the cavity radiation function was utilized to simulate the radiation heat transfer occurring within the space generated by the detachment phenomena. This function facilitated the adjustment of the emissivity value for the steel deck's top surface. Meanwhile, the user subroutine FILM was responsible for incorporating the temperature-dependent emissivity of the steel deck's bottom surface.

4.4 Material Properties

The material properties necessary for heat transfer analysis include density, thermal conductivity, and specific heat. These values for concrete and steel were obtained from EC4 [3]. For thermal conductivity, EC4 [3] provides both an upper limit and a lower limit value for normal concrete. In this study, the average of those two values was used for numerical simulation purposes. In EC4, the specific heat is increased for temperatures ranging from 100 to 200°C due to the influence of moisture evaporation. A peak specific heat is assumed, for instance, at 115°C in EC4 [3] for normal-weight concrete with moisture content of 3% and 10%. In this study, interpolation was employed to calculate the peak specific heat for the moisture content of each tested composite slab based on the measured moisture content value on the day of the experiment.
In this simulation, for simplification purposes, reinforcement, and convection inside the gap between the concrete and steel deck when detached were not modelled. The components of the composite slab models remained in their original geometry and positions throughout the simulation procedure, irrespective of any minor changes in the steel deck shape’s due to high temperatures in reality. Figure 25 illustrates the thermal parameters considered in these analyses for various cross-sectional regions of the slab.

4.5 Comparison Between Experimental and Numerical Temperatures

The experimental results and the data from the numerical models are compared in Figs. 26, 27, 28, 29, 30, 31, and the level of convergence between the two datasets can be seen in all six tested slabs. The numerical model tends to underestimate the actual temperature results, particularly in the early stage. Although the effect has been considered by introducing a spike in the specific heat capacity in the temperature range of 100°C to 200°C (using Cc,peak as recommended in EC4), the numerical results still show some discrepancies. These discrepancies may be attributed to the influence of water vaporization and water migration inside concrete slabs. Additionally, the appearance of water condensation on the unexposed surface of slabs also contributed to these differences. During the initial phase, water boils and vaporizes inside the concrete, causing the concrete temperature to quickly reach 100°C and remain steady for some time until all the water vaporizes. Since it is difficult for the simulation to fully capture this phenomenon, the predicted temperatures are lower than the recorded temperatures during this early stage. This limitation is also discussed in reference [20]. However, as temperature increases, the numerical data gradually aligns closer to the test results.
Figure 26
Numerical and experimental temperatures of H50-60 slab
Full size image
Figure 27
Numerical and experimental temperatures of H50-80 slab
Full size image
Figure 28
Numerical and experimental temperatures of H50-100 slab
Full size image
Figure 29
Numerical and experimental temperatures of H75-60 slab
Full size image
Figure 30
Numerical and experimental temperatures of H75-80 slab
Full size image
Figure 31
Numerical and experimental temperatures of H75-100 slab
Full size image
The agreement between the experimental and numerical temperatures data demonstrates that the thermal parameters of the materials provided by EC4 [3] were sufficient for the numerical modeling of Japanese composite slabs.

5 Summary and Conclusion

This study investigated the thermal performance of trapezoidal composite slabs at elevated temperature through both experimental and numerical means. Six composite slabs with varying dimensions were exposed to heating by the ISO 834 standard fire curve until the thermal insulation limit was reached in all test specimens. During the heating process, all tested slabs experienced water vapor and condensation, which delayed the early temperature development of the concrete. Detachment between the steel deck and concrete was observed after the fire resistance tests. This suggests that the composite effect was not consistently observed throughout the fire test. The experimental results revealed that the temperature of the unexposed surface was considerably influenced by the depth of the concrete, whereas the height of the steel deck had a negligible effect.
Numerical simulations were developed to calculate the temperature distribution across slab cross-sections and were subsequently validated against experimental data from six distinct geometry composite slabs. This numerical model addressed the challenge of accurately simulating the interface between the steel deck and concrete by incorporating radiation heat transfer and considering the temperature-dependent emissivity of galvanized steel deck in the simulations. In fire testing, the detachment depth varied along the bottom surface of the slabs. However, it is demonstrated in this study that using a single detachment depth is sufficient for numerical simulation purposes. The close agreement between the experimental and numerical data demonstrates the high level of accuracy of the proposed numerical model. Furthermore, it illustrates that thermal properties provided by EC4 can be effectively utilized to calculate the temperature distribution of a composite slab made from Japanese material.
The proposed numerical model and the novel experimental data on the thermal response of composite slabs to fire, considering various slab geometries, presented in this paper can be utilized in future research related to composite slab.

Acknowledgements

We would like to convey our sincere gratitude to the Composite Slab Industrial Association (Mr. Ryo Ishimaru and Mr. Satoshi Takeda of Nippon Steel Corporation, Mr. Katsuteru Seki of JFE Steel Corporation, Mr. Yoshimitsu Ito of Meiji Steel Corporation, and Mr. Hayao Sato of ITEC Corporation) for providing the test data and their insightful comments.

Declarations

Competing Interests

The authors declare that they have no known competing financial interests or personal relationships that could have appeared to influence the work reported in this paper.
Open Access This article is licensed under a Creative Commons Attribution 4.0 International License, which permits use, sharing, adaptation, distribution and reproduction in any medium or format, as long as you give appropriate credit to the original author(s) and the source, provide a link to the Creative Commons licence, and indicate if changes were made. The images or other third party material in this article are included in the article's Creative Commons licence, unless indicated otherwise in a credit line to the material. If material is not included in the article's Creative Commons licence and your intended use is not permitted by statutory regulation or exceeds the permitted use, you will need to obtain permission directly from the copyright holder. To view a copy of this licence, visit http://​creativecommons.​org/​licenses/​by/​4.​0/​.

Publisher's Note

Springer Nature remains neutral with regard to jurisdictional claims in published maps and institutional affiliations.
Title
Thermal Analysis of Composite Slabs Based on Experiment and Numerical Simulations
Authors
Hoai Duc Trinh
Mamoru Kohno
Publication date
31-08-2024
Publisher
Springer US
Published in
Fire Technology / Issue 2/2025
Print ISSN: 0015-2684
Electronic ISSN: 1572-8099
DOI
https://doi.org/10.1007/s10694-024-01629-2
1.
go back to reference Bolina F, Tutikian B, Rodrigues JPC (2021) Thermal analysis of steel decking concrete slabs in case of fire. Fire Saf J 121:103295. https://​doi.​org/​10.​1016/​j.​firesaf.​2021.​103295CrossRefMATH
2.
go back to reference Lim L. (2003) Membrane action in fire exposed concrete floor systems. PhD Thesis.
3.
go back to reference Standardization ECf. (2005) EN 1994–1–2: Design of composite steel and concrete structures-Part 1–2: General rules-structural fire design: Eurocode 4.
4.
go back to reference ASTM (2018) Standard test methods for fire tests of building construction and materials. Am Soc Test Mater Int. https://​doi.​org/​10.​1520/​E0119-18CE01CrossRef
5.
go back to reference Iso I (1999) 834: Fire resistance tests-elements of building construction. International Organization for Standardization, GenevaMATH
6.
go back to reference Hamerlinck R, Twilt L, Stark JW (1990) A numerical model for fire-exposed composite steel/concrete slabs.
7.
go back to reference Both C (1998) The fire resistance of composite steel-concrete slabs.
8.
go back to reference Both C, van de Haar P (1994) The thermal behaviour of three fire-exposed composite steel/concrete slabs with different profiled steel decking on an insulated internal support: Test report.
9.
go back to reference Guo S, Bailey C (2011) Experimental behaviour of composite slabs during the heating and cooling fire stages. Eng Struct 33(2):563–571. https://​doi.​org/​10.​1016/​j.​engstruct.​2010.​11.​014CrossRefMATH
10.
go back to reference Guo S (2012) Experimental and numerical study on restrained composite slab during heating and cooling. J Constr Steel Res 69(1):95–105. https://​doi.​org/​10.​1016/​j.​jcsr.​2011.​08.​009CrossRefMATH
11.
go back to reference Li G-Q, Zhang N, Jiang J (2017) Experimental investigation on thermal and mechanical behaviour of composite floors exposed to standard fire. Fire Saf J 89:63–76. https://​doi.​org/​10.​1016/​j.​firesaf.​2017.​02.​009CrossRefMATH
12.
go back to reference Kordosky AN, Drury MM, Quiel SE (2020) Structural fire resistance of partially restrained, partially composite floor beams, I: Experiments. J Constr Steel Res 167:105945. https://​doi.​org/​10.​1016/​j.​jcsr.​2020.​105945CrossRefMATH
13.
go back to reference Jiang J, Main JA, Weigand JM, Sadek FH (2018) Thermal performance of composite slabs with profiled steel decking exposed to fire effects. Fire Saf J 95:25–41. https://​doi.​org/​10.​1016/​j.​firesaf.​2017.​10.​003CrossRef
14.
go back to reference Piloto P, Prates L, Balsa C, Rigobello R (2019) Fire resistance of composite slabs with steel deck: from Experiments to numerical simulation. Mecânica Exp 31:85–94MATH
15.
go back to reference Sharma S, Vaddamani VT, Agarwal A (2019) Insulation effect of the concrete slab-steel deck interface in fire conditions and its influence on the structural fire behavior of composite floor systems. Fire Saf J 105:79–91. https://​doi.​org/​10.​1016/​j.​firesaf.​2019.​02.​006CrossRef
16.
go back to reference Piloto PA, Balsa C, Ribeiro F, Rigobello RJMiCS. (2021) Computational simulation of the thermal effects on composite slabs under fire conditions. Math Comput Sci 15:155–171. https://​doi.​org/​10.​1007/​s11786-020-00466-0MathSciNetCrossRefMATH
17.
go back to reference Abaqus S. (2016) Abaqus analysis user’s guide.
18.
go back to reference Japan AIo. (2017) AIJ Recommendation for Fire Resistant Design of Steel Structures. Architectural Institute of Japan (AIJ) Tokyo.
19.
go back to reference Nag P. Heat and mass transfer: The McGraw Hill Companies; 2011.
20.
go back to reference Kang J, Yoon H, Kim W, Kodur V, Shin Y, Kim H (2016) Effect of wall thickness on thermal behaviors of RC walls under fire conditions. Int J Concrete Struct Maters 10(3):19–31. https://​doi.​org/​10.​1007/​s40069-016-0164-5CrossRefMATH