Zum Inhalt

Impact of Mass Timber Compartment Fires on Façade Fire Exposure

  • Open Access
  • 13.12.2022
Erschienen in:

Aktivieren Sie unsere intelligente Suche, um passende Fachinhalte oder Patente zu finden.

search-config
loading …

Abstract

Der Artikel "Impact of Mass Timber Compartiment Fires on Façade Fire Exposure" untersucht die kritischen Auswirkungen des massiven Holzbaus auf die Branddynamik und die Exposition der Fassade. Durch die Analyse kleinerer und größerer Brandexperimente zeigt die Studie, wie exponierte Holzoberflächen das Brandwachstum beschleunigen, die Flammenhöhe erhöhen und die Außentemperaturen erhöhen. Insbesondere die umfangreichen Feuerschutztests von TIMpuls zeigen, dass freiliegendes Holz zu intensiveren und längeren Bränden führt, was erhebliche Auswirkungen auf die Sicherheit der Fassade hat. Die Forschung unterstreicht die Notwendigkeit weiterer Untersuchungen der Schutzmaßnahmen für Holzkonstruktionen, um diese Risiken zu verringern.
Supplementary file1 (MP4 442219 kb)
Supplementary file2 (MP4 342455 kb)
Supplementary file3 (MP4 346897 kb)
Supplementary file4 (MP4 283337 kb)
Supplementary file5 (MP4 555306 kb)

Supplementary Information

The online version contains supplementary material available at https://​doi.​org/​10.​1007/​s10694-022-01346-8.

Publisher's Note

Springer Nature remains neutral with regard to jurisdictional claims in published maps and institutional affiliations.

1 Introduction

Timber constructions are increasing in popularity due to their high degree of prefabrication and environmental benefits. Several studies show that exposed timber surfaces or partially protected timber components can cause a fire to develop faster, be more intense, last longer and may have a relevant impact on the fire exposure on the façade than in non-combustible compartments [1, 2].
This leads to the hypothesis that more exposed timber in the form of a structural fire load can lead to more critical effects on the façade, a hypothesis that needs to be investigated further.
The fact that the most frequent mode of significant fire spread is via the façade shows just how important this aspect is [3]. This is also proven by statistics provided by German fire brigades [4, 5].

2 Analysis of Existing Previous Experimental Investigations

2.1 Reduced-Scale Fire Experiments

Gorska et al. [6, 7] investigated the effect of exposed timber walls and ceilings on the compartment fire dynamics in 24 medium-scale compartment (0.5 m × 0.5 m × 0.37 m with opening 0.3 m × 0.28 m) experiments. The compartments were constructed with cross-laminated timber (CLT). The contribution of the structural timber to heat-release-rates, the temperatures on the façade, the flame-heights outside the opening and velocity fields at the opening were investigated and compared to each other within the series of experiments. A significant increase in the magnitude of the external flames and of the temperatures at the façade due to exposed timber surfaces was observed. The data indicate that exposing more CLT surfaces to fire in the compartment results in larger external flames, and consequently in higher temperatures. However, the increase in temperature is not directly proportional to the area of CLT exposed to fire. In addition, a significant increase in velocities [7] and in radiant heat fluxes were detected as more CLT panels were left exposed. “The increase of radiant heat flux, especially at lower heights closer to the opening, presents up to five-time bigger values when compared to the baseline scenario. This change implies that the façade is exposed to five times more heat, which indicates that fire spread due to ignition of the façade materials is much more likely to happen” [6].
Nothard et al. [8] investigated the influence of a combustible CLT ceiling on the compartment fire dynamics in 1/8 reduced scale fire experiments. The CLT ceiling leads to a significant increase in the rate of fire spread in the compartment. These more rapid transitions to a fully developed fire led to an earlier fire exposure at the façade [8].
Bartlett et al. [9] carried out a series of eight reduced-scale compartment fire experiments to examine the effects of the quantity and location of exposed timber on the heat fluxes to the façade from the resulting external fire plume. The compartments had internal dimensions of 700 mm × 700 mm × 700 mm, and were constructed from CLT panels and vermiculite board. It was concluded that increasing the quantity of exposed timber in the compartment results in an increased peak in the heat fluxes and increased burning durations outside. This means that there is a strong correlation between flame height and incident heat fluxes [9].
The experiments presented above show that exposed timber surfaces in the compartment lead to an increase in heat flux and flame height outside the opening. However, it should be noted that the experiments were all carried out on a reduced scale. An attempt was subsequently made to reproduce the full-scale fire tests presented in this study (Sect. 3) by experiments on a scale of 1/10. It turned out that the fire dynamics in the room, and especially on the façade, could not be reproduced appropriately [10].

2.2 Full-Scale Fire Tests

Maag et al. [11] carried out a series of fire tests on wooden modular hotels with light timber frame walls and ceilings to investigate the behavior of modular hotels subjected to natural fires. The light timber frame walls and ceilings had non-combustible and combustible linings. The influence of combustible linings on to the fire severity was clearly observed after flashover occurred. The external flame was more intense for the module with combustible wall and ceiling linings than for the modules with non-combustible wall and ceiling linings. Consequently, the total energy release was significantly lower in the tests with non-combustible linings and the fire spread to the upper module after about 40 min. In the test with combustible linings, on the other hand, the fire spread after just eight minutes. When evaluating the results, it must be taken into account that window panes were installed and the fire propagation to the upper floor depended on the bursting of the panes [11, 12].
Su and Lougheed [13] conducted four full-scale fire tests with two compartments made of light timber frames, one made of lightweight steel-frames and one made of CLT. As part of these tests, they measured the heat flux on the façade 3.5 m above the compartment openings. The measurements concluded that the involvement of the timber joists and OSB linings in the fire led to the increase of the heat release rate (HRR) and heat fluxes to the façade and adjacent structures [13].
Hakkarainen [14] investigated the gas temperature development and charring behavior of timber frame and mass timber compartments. For this purpose, she conducted three full-scale fire tests with glued laminated timber (GLT) wall and ceiling elements and one test with light timber frame elements. In the first test (Test 1), all GLT walls and the ceiling were unprotected and directly exposed to the fire. In the other tests, the walls and ceilings were protected by gypsum-plasterboards of different thicknesses (thickness increasing from Test 2 to Test 4).
In Test 1 and 2, the heat flux showed an increasing trend until the fire was extinguished. Test 3 and 4 exhibited heat flux maxima approximately 20 min to 30 min after flashover, followed by a decrease of the heat flux when the movable fire load was consumed, as shown in Fig. 1.
Figure 1
Heat flux measurements on the façade 2.2 m above the opening from the four tests [2] based on [13]
Bild vergrößern
Based on Hakkarainen’s visual observations and the energy balance considerations, she concluded that a large part of the pyrolysis gases burned outside the compartment in the case of exposed or partially protected (test 1 and 2) timber surfaces. According to the calculation, about 15% of the combustion took place outside the room in the case of the protected timber structure, while the proportion of external combustion in the unprotected structure was about 50% [14].
Su et al. [15] investigated, among other things, the influence of the exposed timber surface in five large-scale fire tests. The impact on the façade was not part of the investigation. However, they came to the conclusion that flashover and fire impingement on the facade occurs earlier in the case of exposed CLT [15]. This assumption is confirmed in Hadden et al. [16]. He further concludes that the addition of pyrolysis gases from the exposed timber surfaces will prolong the compartment fire and potentially increase the HRR rate both inside and outside the compartment [16].
Su et al. [17] conducted six large CLT compartment fire tests to quantify the CLT contribution to compartment fires. In all the tests with unprotected und directly exposed CLT surfaces, flashover occurred earlier, the fully developed fire lasted longer and the HRRs and heat fluxes to the exterior façade were higher than in the baseline tests with protected CLT surfaces [17].
The influence of combustible surfaces and ventilation factors on the dynamics of compartment fires (including external flaming) was investigated as part of the Épernon Fire Tests [18]. The test series includes three standard furnace fire resistance tests and six compartment fire tests with loadbearing reinforced concrete slabs and loadbearing CLT slabs. The six compartment tests can be divided into three groups, Scenario 1, Scenario 2 and Scenario 3. Each of these groups includes two tests under the same conditions, investigating the influence of a CLT slab compared to a concrete slab as a ceiling. Scenarios 1–3 differ in the respective ventilation conditions [18].
A mock-up façade was installed above the compartment opening in order to monitor external flaming for the four compartment tests of Scenarios 2 and 3 [18, 2023]. The incident heat flux to the façade was approximately three times greater when a timber ceiling was used instead of a concrete ceiling. According to the report, this is due to the additional pyrolysis by the burning CLT slabs, which burns in the outer plume due to a lack of oxygen in the compartment [18, 19].
The gas phase temperatures above the openings are shown in Fig. 2. As with the heat fluxes, the presence of an exposed timber ceiling significantly increases the temperatures in the external fire plume. It can be seen that the temperatures fall as a function of the height [18, 19].
Figure 2
Temperatures at the centerline of the mock-up façade for Scenarios 2 (left) and 3 (right) [18]
Bild vergrößern
Brandon et al. [24] and Sjöström et al. [25] conducted five full-scale compartment fire tests within CLT and GLT constructions. Four of the tested compartments represent a typical residential compartment. The other tested compartment aimed to be representative of office occupancy. The residential fires tests had unprotected, directly exposed mass timber areas of 54 m2 for test 1, 91 m2 for test 2, 96 m2 for test 3 and 97 m2 for test 5. Test 4 represented an office occupancy with large ventilation openings and an exposed mass timber area of 97 m2. Along with other components in all tests, the timber ceiling was completely exposed to fire from the beginning of the tests. Among many other measurements, exposure to the façade above the openings was investigated and the results were presented in a separate report by Sjöström et al. [25]. An increase of roughly 40 m2 of exposed surface area (from (from 54 m2 to 94 m2) resulted in a temperature increase of 100 °C to 130 °C at the façade at all heights up to 3.5 m above the opening in these tests. Additionally, an increased fire plume height of up to 1 m was observed, as shown in Fig. 3. The most significant effect of increasing the exposed areas of the timber surface in the compartment was a prolonged duration of the fully developed fire phase [24, 25].
Figure 3
Flame heights determined by data obtained by image analysis or visual observations [25]
Bild vergrößern
Kotsovinos et al. [26] investigated the fire dynamics of large compartments. The test CodeRed #01 was carried out inside a large open-plan compartment with a floor area of 352 m2. The compartment had a fully exposed CLT ceiling and GLT columns. Previously, the research team had already carried out two comparable tests in non-combustible compartments [27, 28]. In a first comparison, the research team concluded that the CLT ceiling impacts the total HRR substantially, nearly doubling the peak HRR from 69 MW [27] and 58 MW [28] to 121 MW [26]. This extra HRR impacts the amount of external flaming. External flames were observed 6 min after ignition of roughly 2.5 to 3 m in height. An initial visual comparison showed an increase in flame lengths due to the presence of exposed timber surfaces. Figure 4 shows the heat flux on the façade for the door and window opening [26].
Figure 4
Incident heat fluxes to the façade measured at various heights above the opening soffit (CodeRed #01) [26]
Bild vergrößern
Kotsovinos et al. [29] investigated the influence of the ventilation in another compartment fire test, which was similar in geometry and fire load to the previously cited CodeRed #01 [26]. For this CodeRed #02 test, the opening factor was reduced from 0.071 m1/2 to 0.039 m1/2. The differences in ventilation resulted in higher external flames (3 m to 3.5 m) and the flames protruded much further (laterally) from the compartment. In addition, the duration of the external flames was longer. A direct comparison of the heat flux on the façade of CodeRed #01 and CodeRed #02 is given by comparing Figs. 4 and 5.
Figure 5
Incident heat fluxes to the façade measured at various heights above the opening soffit (CodeRed #02) [29]
Bild vergrößern

3 TIMpuls Full-Scale Compartment Fire Tests

3.1 Aim of the Study

The TIMpuls full-scale compartment fire tests serve as evidence of the knowledge and findings gained during the three-year research project [30]. The load-bearing capacity, compartmentation, self-extinguishing properties and extinguishing by the fire brigade (post-fire behavior) as well as the limitation of the spread of fire were investigated. Compared to the full-scale compartment fire tests described above, the high fire load destiny of 1085 MJ/m2 required for residential occupancy can be considered as a special feature of the TIMpuls fire tests. The variation between exposed, initially protected and fully encapsulated timber elements and their influence on the fire dynamics is of particular importance within the test campaign.
The aims of the TIMpuls full-scale compartment fire tests are:
  • Verification of the results of previously conducted furnace tests in a real fire compartment
  • Influence of exposed or only initially protected timber surfaces on the fire dynamics
  • Behavior of the fire protection lining and its protection times under natural fire conditions
  • Self-extinguishing and post-fire behavior of timber constructions
  • Extinguishability of typical timber constructions by the fire brigade
  • Investigation of the fire impact on the façade and on the stories above the compartment fire due to the additional structural fire load
  • Investigation of the effects of structural fire protection measures in element joints and joints to other building components
  • Evaluation of the compartmentation (fire and smoke) under natural fire exposure
This paper presents the investigation into the influence of additional structural fire loads on the façade and the stories above the fire compartment of origin.

3.2 Test Set-Up

3.2.1 General

The first test serves as a reference test and is intended to represent a non-combustible building, e.g. made of masonry or reinforced concrete. All structural elements were encapsulated by 2 × 25 mm Gypsum plasterboard type F. In the other four tests, different combinations of timber constructions, such as CLT, glued-laminated timber (GLT) and light timber frame (LTF) were used, each in combination with gypsum plasterboard type F (GPF) or gypsum fiberboard (GF) or exposed, as shown in Table 1. A detailed overview of the wall and ceiling structures used in the tests is given in Table 4 of Appendix.
Table 1
Description of the Individual Experimental Set-Ups
https://static-content.springer.com/image/art%3A10.1007%2Fs10694-022-01346-8/MediaObjects/10694_2022_1346_Tab1_HTML.png
CLT  cross-laminated timber, LTF  light timber frame, GLT  glued-laminated timber, GPF  gypsum plasterboard type F, GF  gypsum fiberboard, OSB oriented strand board
aColumn—300 × 300 mm2 GLT
bBeam—300 × 320 mm2 GLT
cAs percentage of the total compartment surfaces excluding floor and window opening

3.2.2 Compartment

The internal dimension of the floor area was 4.5 × 4.5 m2 (LxW) for the first three compartment fire tests V0, V1, V2 and 4.5 × 9 m2 (LxW) for two following compartment fire tests V3, V4. The geometric ratio of the floor area of one to two made it possible to observe the spatial influence on the fire dynamics, as shown in Figs. 6, 7, 8, 9, 10 and 11. In order to represent typical room heights, the internal dimension of the test rooms is approx. 2.4 m, as shown in Table 1.
Figure 6
Perspective V0, V1, V2
Bild vergrößern
Figure 7
Perspective V3 and V4
Bild vergrößern
Figure 8
Floor plan with arrangement of the 9 wooden cribs and the four thermocouple trees (circle) for tests V0, V1, V2 (in cm)
Bild vergrößern
Figure 9
Floor plan with arrangement of the 18 wooden cribs and the six thermocouple trees (circle) for test V3 (in cm)
Bild vergrößern
Figure 10
3D-model of test V4
Bild vergrößern
Figure 11
Floor plan with arrangement of the 18 wooden cribs and the six thermocouple trees (circle) for test V4 (in cm)
Bild vergrößern
All compartments have just one window opening. The opening is 2.4 × 2.2 m2 (W × H) in the small room (4.5 × 4.5 m2) and 4.2 × 2.2 m2 (W × H) in the large room (4.5 × 9 m2). This results in a constant opening factor of 0.094 m1/2. The opening was open from the beginning of each test.
The floor covering was made of gypsum plasterboard or gypsum fibreboard.

3.2.3 Fire Load

For the tests, a fire load density was selected that is appropriate for residential buildings. According to [31], this results in a characteristic fire load density of 1085 MJ/m2 for the 90% quantile.
The fire load was designed in the form of wooden cribs. The floor area of the individual wooden cribs that are evenly distributed in the compartment is 1 × 1 m2 each. They are made of sticks of the dimensions W × H = 40 × 40 mm2. The surface to air ratio of the cribs is 1:1. Taking into account the wood moisture and the density of the wood, the fire load of 1085 MJ/m2 described above corresponds to approx. 74 kg/m2 of wood. In total, approx. 1.5 tons of wood were used in the small compartment (4.5 × 4.5 m2) and approx. 3 tons of wood in the large compartment (4.5 × 9 m2). The arrangement of the wooden cribs in the compartments are shown in Figs. 8, 9 and 11. Due to the very high fire load, the tests that were carried out can be defined as unique. This is also evident when comparing the fire load densities for Europe specified in Eurocode 1 or in the respective national annexes, as shown in Table 5 of Appendix.

3.2.4 Façade Shield

The façade shield above the window opening was constructed from cement-bonded sandwich panels mounted on a timber substructure. The use of cement-bonded sandwich panels was intended to reduce the influence of evaporating water steam to the measurements.

3.3 Test Procedure

Two wooden cribs arranged along wall 3, starting from the corner of wall 2 and 3, were always used for ignition. The two wooden cribs were equipped with two ignition trays 39 × 39 × 1200 mm3 (W × H × L) with 200 ml of isopropanol in each. The four trays are ignited directly one after the other and then the test time started. All observations were documented during the test time.
The tests V1, V2, V3 and V4 did not self-extinguish. They were therefore all extinguished by the fire brigade.
The weather data for the individual tests are provided in Table 6 of Appendix.

3.4 Instrumentation

Extensive instrumentation was arranged to measure the influence of the fire dynamics and the thermal exposure on the structure. The temperature development of the gas in the compartment, on the façade and within the building components as well as element joints and joints to other building components was measured, as was the incident heat flux received by the ceiling, by wall 1 and by the façade. The gas flow velocities were also measured in the opening, within the compartment and on the façade as was the separate mass losses for the floor and other components. A total of up to 300 type-K thermocouples, 6 plate thermometers, 10 bidirectional probes and 6 cameras were used as part of each fire test.
Following a more detailed description of the instrumentation used in the tests, the effect of the fire on the façade is described.
Four thermocouple trees each were arranged in the compartment test for V0, V1, V2 and six for V3 and V4, as shown in Figs. 8, 9 and 11. To measure the gas temperature, five thermocouples were arranged per thermocouple tree at heights of 50, 100, 150, 200 and 230 cm. Sheathed thermocouples of type K according to EN 60584-1 [32] with an outer diameter of 1 mm were arranged for V0 and V1, and with an outer diameter of 3 mm for V2, V3, V4. A plate thermocouple was installed 10 cm below the ceiling in all tests. This corresponds to a height of 230 cm in relation to the compartment.
In order to determine the mass loss, the floor and the structural components (walls, ceiling) were each placed on decoupled floor frames and these frames were supported on individual load cells. A total of eight load cells were positioned under the frames for V0–V2 and 10 for V3 and V4.
30 thermocouples, two plate thermocouple and two bidirectional probes for measuring the gas flow velocity were placed on the façade shield for V0–V2 and 54 thermocouples, two plate thermocouple and two bidirectional probes for V3 and V4. Sheathed thermocouples of type K according to EN 60584-1 [32] with an outer diameter of 3 mm, plate thermocouple according to EN 1363-1 [33] and bidirectional probes of the type BS11 according to [34] were used.
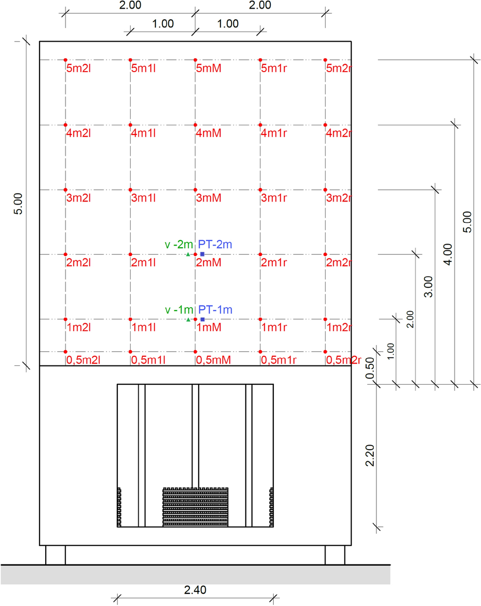
The thermocouples were positioned at a distance of 20 mm from the surface of the façade, the plate thermocouple and the bidirectional probes at a distance of 50 mm. They were fixed to a taut wire in front the façade. Figures 12 and 13 show the positions of the thermocouples.
Figure 12
Façade shield V0–V2 with dimensions and measuring points; unit of dimensions m] (red ● = sheathed thermocouples, blue ■ = plate thermocouple, green ▲  bidirectional probes) (Color figure online)
Bild vergrößern
Figure 13
Façade shield V3 and V4 with dimensions and measuring points; unit of dimensions [m] (red ● = sheathed thermocouples, blue ■ = plate thermocouple, green ▲ = bidirectional probes) (Color figure online)
Bild vergrößern

4 Results of the Fire Tests

4.1 Gas Temperature

Figures 14, 15, 16, 17 and 18 show the gas temperatures in the compartment at different heights for each test. The measurements of the thermocouple (TC) trees are presented as an average value over the four trees (V0–V2) or the six trees (V3 and V4). In addition, the plate thermocouple (PT) on the ceiling is also shown.
Figure 14
Gas temperatures for V0 in the compartment at different heights
Bild vergrößern
Figure 15
Gas temperatures for V1 in the compartment at different heights
Bild vergrößern
Figure 16
Gas temperatures for V2 in the compartment at different heights
Bild vergrößern
Figure 17
Gas temperatures for V3 in the compartment at different heights
Bild vergrößern
Figure 18
Gas temperatures for V4 in the compartment at different heights
Bild vergrößern

4.2 Heat Release Rate

The HRR from the measurement data of the mass loss is calculated by determining the mass loss rate and assuming a calorific value of 17.28 MJ/kg, a wood moisture content of 14% and a combustion efficiency of 0.9. Due to the strongly fluctuating measurement data, a moving average was first formed over 9 measurement cycles (recording frequency 1 s). The measurement data were then used as 25 min average values to calculate the HRR, as shown in Figs. 19 and 20 [35].
Figure 19
Comparison of heat release rates V0–V4 for the floor (movable fire load)
Bild vergrößern
Figure 20
Comparison of heat release rates V0–V4 for the structural components (structural fire load)
Bild vergrößern
An existing strong oscillation can be seen despite the smoothing measures for the calculated HRRs of the floor (movable fire loads) in Fig. 19 and the structural components (structural fire load) in Fig. 20. Furthermore, it must be taken into account that the recorded data of the mass loss includes the dehydration loss as well as the falling off of lining parts. The HRRs shown, especially for the structural fire load, are therefore burdened with an unnamable imprecision.
In order to describe the influence of the structural fire load more precisely, the HRR from the combustible structure was determined mathematically based on the charring rate. The following assumptions were made for the determination: (I) charring starts at 300°C [36], (II) the protection time of a lining corresponds to the time until 300°C is reached behind the lining (tch [36]), (III) the failure time of the fire protection lining corresponds to the time until the difference between gas temperature in the compartment and measured temperature behind the lining is less than 50°C [37] (tf [36]) and IV) a reduced charring rate of 70% is assumed between tch and tf (k2 [36]). The residual cross-section of the timber components was recorded measured after the tests and the surface area of the timber components is known, as shown in Table 1 and in Tables 4 and 7 of Appendix. Mean values were determined.
The HRR is calculated with the help of this information and the aforementioned specifications for calorific value, wood moisture and combustion efficiency, in connection with an assumed density of wood of 450 kg/m3, as shown in Fig. 21. It should be noted that the calculation is based on the same assumptions for solid timber, light timber frame components and OSBs. Charring is assumed to be constant over time. In the case of V3, calculations are only made up to the 90th minute, as there is no constant charring at this point because there is no longer a movable fire load. These assumptions also lead to uncertain results. However, they should provide a trend and enable comparability. For a better comparison of the two approaches to determining the HRR (mass loss vs. charring rate), the results are compared directly to each other in Figs. 4, 41, 42 and 43 of Appendix. It can be stated that the results have a similar range of values.
Figure 21
Comparison of heat release rates V0–V4 for the structural fire load derived from measured char depth at the end of the test
Bild vergrößern

4.3 Façade Temperatures

Figures 22, 23, 24, 25 and 26 show the temperature curves at different heights along the façade. For a better overview, the measured values are presented as averages over one minute (recording frequency 10 s) and only the measuring points located centrally above the opening (thermocouples (TC) at heights of 0.5, 1, 2, 3, 4 and 5 m above the lintel) and the two plate thermocouples (PT) are shown. The development of the external gas temperature of the tests during the first 60 min for the measuring points which were located centrally above the opening at different heights are shown in Figs. 27 and 28.
Figure 22
Temperature–time diagram of V0 façade for measuring points located centrally above the opening at different heights
Bild vergrößern
Figure 23
Temperature–time diagram of V1 façade for measuring points located centrally above the opening at different heights
Bild vergrößern
Figure 24
Temperature–time diagram of V2 façade for measuring points located centrally above the opening at different heights
Bild vergrößern
Figure 25
Temperature–time diagram of V3 façade for measuring points located centrally above the opening at different heights
Bild vergrößern
Figure 26
Temperature–time diagram of V4 façade for measuring points located centrally above the opening at different heights
Bild vergrößern
Figure 27
External gas temperature development throughout the first 60 min of V0, V1 and V2 for the measuring points located centrally above the opening at different heights
Bild vergrößern
Figure 28
External gas temperature development throughout the first 60 min of V3 and V4 for the measuring points located centrally above the opening at different heights
Bild vergrößern

4.4 Flame Heights

The flame heights above the opening were measured visually. For this purpose, height marks were placed on the façade shield and the flame heights were observed at 30-s intervals as a weighted average [38]. A weighted moving average from two data points was chosen for better visualization, as shown in Figs. 29 and 30. The flame heights can be seen in the videos of the digital appendix.
Figure 29
Flame heights above the opening for V0, V1 and V2
Bild vergrößern
Figure 30
Flame heights above the opening for V3 and V4
Bild vergrößern

4.5 Heat Flux on the Façade

The incident heat fluxes were calculated by converting the temperatures measured by the two plate thermocouples (PT), placed on the façade centrally 1 and 2 m above the opening, as shown in Figs. 12, 13 and Sect. 4.3, according to the method used by Häggkvist et al. [39] and Ingason et al. [40] using Eq. (1):
$${{\dot{q}}_{inc}^{\prime \prime}} = \sigma {T}_{PT}^{4}+ \frac{\left(h+{K}_{PT}\right)\left({T}_{PT}- {T}_{\infty }\right)+ {C}_{PT} \frac{d{T}_{PT}}{dt}}{{\varepsilon }_{PT}}$$
(1)
where σ is the Stefan–Boltzmann constant (5.67 × 10–8 J/m2 K4), TPT is the temperature of the PT, h is the convective heat transfer coefficient (10 W/m2 K), KPT is the effective heat transfer coefficient due to conduction (8 W/m2 K), T is the ambient temperature, CPT is the heat capacity of the PT (4200 J/m2 K) and εPT is the emissivity of the PT surface (0.8). Note: When comparing directly with results from other research, the uncertainties or inaccuracies regarding emissivity = (0.7 to 0.9) and heat transfer coefficient = (5 J/m2 K to 25 J/m2 K) must be taken into account [26].
The heat flux is shown as an average over one minute (measuring frequency 25 s) for better visualization, as shown in Figs. 31 and 32.
Figure 31
Heat flux measured centrally above the opening at a height of 1 and 2 m for V0, V1 and V2
Bild vergrößern
Figure 32
Heat flux measured centrally above the opening at a height of 1 and 2 m for V3 and V4
Bild vergrößern

4.6 Gas Flow Velocities

The gas flow velocities on the façade were measured using bidirectional probes placed centrally above the opening at a height of 1 and 2 m, as shown in Figs. 33 and 34. The probes measure the differential pressure caused by a flow movement at the probe and calculate a direction-dependent flow velocity accordingly using Eq. (2) [30, 34]:
Figure 33
Comparison of the gas flow velocities on the façade at 1 m height of V0, V1 and V2
Bild vergrößern
Figure 34
Comparison of the gas flow velocities on the façade at 2 m height of V0, V1 and V2
Bild vergrößern
$$V= \sqrt{\frac{2 \Delta p T}{{p}_{0} {T}_{0}}}$$
(2)
Equation (2) is derived from the Bernoulli equation, where p0 is the standard density of air (1.293 kg/m), T0 is the temperature at 0°C (273.15 K), T is the measured temperature and Δp is the differential pressure.
It should generally be noted that the bidirectional probes are sensitive to weather conditions. The evaluation of the measurement data in test V3 and V4 showed that some of the probes failed or delivered incorrect results. For this reason, these results V3 and V4 are not shown.

5 Discussion

5.1 Summary of the Test Results

The results of the tests are presented in Table 2 for further discussion.
Table 2
Summary of the Test Results
 
Test
V0
V1
V2
V3
V4
Compartment
Max. compartment gas temperature (°C)
1350
1400
1290
1250
1220
Time to flashover (min)
9
9
8
10
10
Duration of fully-developed fire phase (min)
31
36
34
42
45
Onset of the beginning decay phase (min)
40
45
42
52
55
Char fall-off on CLT walls (min)
85
80
Max. HRR by movable fire load (MW)
10
8
9
16.5
16
Start time of charring behind fire protection lininga (min)
37
63
53/75b
Failure time of fire protection liningc (min)
66
81
69/95b
Extinguishing by fire brigade (min)
93
92
150
65
Self-extinguishingd (min)
220
Façade
Max. façade temperature (°C)
900
1080
950
1180
1160
Max flame height (m)
5.2
5.2
5
5.7
5.5
First flames on the façade (min)
9
9
8
10
10
No longer flames on façade (min)
52
78
56
76
Max. heat flux (kW/m2)
55
85
61
107
109
Max. gas flow velocity (m/s)
9.9
10.2
7.6
aThe start time of charring behind the fire protection lining is defined as exceeding a temperature of 300°C [36]
bFirst value for 2 × 12.5 mm, second value for 2 × 18 mm gypsum fiberboard
cThe failure time of the fire protection lining corresponds to the time until less than 50°C difference between gas temperature in the compartment and measured temperature behind the lining is reached [37]
dSelf-extinguishing is defined as the complete extinguishing (no smouldering) of the movable and structural fire load (construction)

5.2 Gas Temperature

The gas temperatures in the fire growth phase show almost no differences between non-combustible and combustible structures due to an identical movable fire load density and ignition process. This phenomenon is caused by the relatively high fire load density in the TIMpuls fire tests.
The fully-developed fire phase, which always starts at about the 10th minute of the tests, shows only minor differences in the temperature curve (ΔT < 150 K) up to the 40th minute of the test. The influence of the structural fire load becomes obvious based on Fig. 35.
Figure 35
Comparison of the gas temperatures in the compartment at the plate thermocouple at a height of 230 cm
Bild vergrößern
In the fully-developed fire phase of a ventilation-controlled fire, there is not enough oxygen available to combust all pyrolysis gases inside the fire compartment. The availability of additional fuel does not influence the conditions in the compartment, as shown in Fig. 35. As described in Sect. 2.2, other researchers have concluded that the additional fire load in the form of the structural fire load leads to an earlier flashover and an earlier fire impact on the façade. These differential observations between the TIMpuls project and other tests are due to the relatively high fire load mentioned above, see Table 3. The more movable fire load is available, the lower the influence of the structural fire load in the fire development phase.
Table 3
Comparison of the Fire Load Densities of the Tests Cited in Sect. 2.2
Test
Su et al. [15]
Su et al. [17]
Épernon Fire Tests [18]
Brandon et al. [24]
Kotsovinos et al. [26]
Kotsovinos et al. [29]
TIMpuls
Fire load density (MJ/m2)
550
550
891
560
374
377
1085
Opening factor [41] (m1/2)
0.03
0.03/0.06
0.050/0.032
0.062/0.25
0.071
0.039
0.094
Time to flashover (min)
5 to 7
10 to 15
2
4 to 17
5.6a
7.3a
8 to 10 min
aLocalised flashover
The time of the flashover depends on many factors (geometry, opening area, arrangement of timber surfaces, etc.) and is therefore not investigated in more detail. However, it is obvious from the tests that the influence of exposed timber surfaces is lower when the fire load is increased.

5.3 Façade Temperatures

Comparing the measured temperatures on the façade, it becomes clear that the additional structural fire load leads to an increase in temperatures. It should be noted that only tests V0 to V2 can be directly compared with each other. V3 and V4 can only be evaluated with each other due to the changed geometry. When comparing V0 (reference test fully encapsulated) with V1 and V2, maximum temperature deviations averaging approx. 120°C to 200°C can be seen on the façade in the fully developed fire phase in the area of the opening, as shown in Figs. 36 and 37. This temperature increase is in a similar range to the studies of Sjöström et al. [25].
Figure 36
Comparison of the temperature–time diagrams of the plate thermocouples centered above the opening at a height of 1 and 2 m on the façade for V0, V1, V2
Bild vergrößern
Figure 37
Comparison of the temperature–time diagrams of the thermocouples centered above the opening at a height of 3 m on the façade for V0, V1, V2
Bild vergrößern
Although 100% of the wall and ceiling surfaces contributed to the fire from the middle of test V1 (37th and 66th min as shown in Table 2), an increased temperature profile is obvious beforehand. This confirms that an exposed mass timber ceiling has a greater impact on the façade than exposed mass timber walls. One possible explanation is that the flames are able to run along the combustible ceiling towards the opening in conjunction with the narrow lintel of 20 cm above the opening (floor-to-ceiling opening) in these tests.
Higher temperatures occur on the façade in test V1 than in test V2. However, it must be noted, that a sleet shower set in for a short time (approx. 10 min) during the V2 test. Due to the short duration compared to the test time, the authors do not assume a critical influence for the measurement results.
Comparing V3 and V4 shows that the increase from 42% to 58% of the ratio of exposed mass timber surface does not result in any noteworthy increase in temperatures on the façade, as shown in Figs. 38 and 39.
Figure 38
Comparison of the temperature–time diagrams of the plate thermocouples centered above the opening at a height of 1 m and 2 m on the façade for V3 and V4
Bild vergrößern
Figure 39
Comparison of the temperature–time diagrams of the thermocouples centered above the opening at a height of 3 m on the façade for V3 and V4
Bild vergrößern
One reason for this is that the exposed ceiling has the greatest influence on the façade and both tests had a corresponding and identical ceiling. On the other hand, the tests have a high fire load density (Table 5), which leads to a strong fire impact on the façade regardless of the exposed surfaces.
Whether an exposed ceiling has a higher impact on the façade fire exposure, especially in combination with floor-to-ceiling openings, than a percentage increase in exposed walls should be investigated further.
In order to examine the question as to whether the second storey above the fire compartment is exposed to a higher risk with regard to fire exposure along the façade in the case of exposed mass timber surfaces in more detail, the temperatures were illustrated in the center above the opening at a height of 3 m, as shown in Figs. 37 and 39. The reason for this hypothesis is that (I) the second storey above the fire compartment begins 3 m above the floor-to-ceiling opening and (II) a fast fire spread over more stories is critical for the fire brigade due to the necessary number of staff and the technical limits of e.g. dry or wet risers [4244]. Comparing V0 and V1 shows that V1 reaches 200°C at the facade about 4 min earlier and while V0 reaches peak temperatures between 400°C and 500°C, V1 reaches temperatures above 600°C at the facade. To quantify the influence of these differences more precisely, one possible question would be which temperatures cause glass to fail. Babrauskas [45] shows that it is very difficult to predict when glass will actually break enough to fall out in a real fire. Morris [46] concludes that double-glazed windows with 6 mm thick glass fail at about 600ºC. Whether the temperature difference of approx. 200°C on average actually leads to a higher risk in reality cannot be answered conclusively. However, considering Morris' results, it seems possible.

5.4 Flame Heights

Figures 29 and 30 show that there is no significant difference in flame height between V0, V1 and V2 or between V3 and V4. Looking at the temperatures on the façade, it can be seen that although there is a difference in this series of tests in terms of the temperature of the flame, the height itself is not affected by an additional structural fire load. Differences in the comparison of V0, V1 and V2 exist at the beginning and after the 40th minute, but not in the fully developed fire. V1 and V2 have a more intense flame on the façade a few minutes before V0. The difference is greatest for V1 compared to V0. From the 40th minute, the flames on the façade of V0 decreased, and no more flames were observed on the façade from about the 53rd minute. For V2, this occurred 5 min and for V1 26 min later.
The higher deviation of V1 at the beginning, and especially from the 40 min onwards, is obviously due to the additional structural fire load (after 37 min the wall surfaces began to contribute to the fire in addition to the ceiling). Due to the additional structural fire load, the fire duration was prolonged. The wooden cribs (movable fire load) burn down more slowly due to the ventilation conditions (ventilation-controlled fire) and the additional structural fire load in the compartment. The prolonged fire causes longer-lasting flames on the façade.
These results from TIMpuls contradict the findings of Sjöström et al. [25] and Kotsovinos et al. [26]. These two studies concluded that additional structural fire load leads to an increase in flame heights. The reason for this could be the high fire load density and the large width of the opening selected in TIMpuls. Due to this high fire load density, high flames are formed independently and the influence of the additional structural fire load is thus reduced.

5.5 Heat Flux on the Façade

Figure 31 shows that V0 and V2 behave very similarly in terms of heat flux. However, there are large deviations between V0 and V1, with peak deviations of up to 35 kW/m2. Because this peak deviation occurs before the 35th minute, an influence of the initially protected CLT walls can be ruled out. It can therefore be concluded that an exposed CLT ceiling leads to higher heat fluxes on the façade than an exposed mass timber wall. This theory is also supported by Bartlett et al. [9]. As in [9], it is assumed that more unburnt gases leave the compartment directly without mixing with the gases in the compartment with an exposed ceiling, and consequently burn in the plume.
The results from the Épernon Fire Tests [18], that the incident heat flux on the façade is approximately 3 times greater when a timber ceiling is used instead of a concrete ceiling, could not be confirmed. The reason for this could again be the different fire load densities and the width of the opening. The influence of the exposed ceiling decreases with a high fire load density and a large width of the opening (opening factor in Table 3), as in the TIMpuls tests.
Figure 32 shows that an increase of the exposed timber surface does not lead to any differences in the course at the beginning and during the fully developed fire phase.

5.6 Gas Flow Velocities

Figures 33 and 34 compare the gas flow velocities on the façade at a height of 1 and 2 m for V0, V1 and V2.
It can be seen that V0, V1 and V2 have similar gas flow velocities at 1 m height. This is because the persistent flame is always located in this area.
Comparing the gas velocities at a height of 2 m shows that V0 and V2 have similar results. V1 has higher results in a direct comparison. The fact that the wall lining starts to fail at the 37th minute and both wall and ceiling surfaces contributed to the fire could explain the increase in gas velocity.

6 Conclusion and Outlook

The aim of this study was to investigate whether exposed timber surfaces or initially protected timber components can lead to more critical effects on the façade.
Five full-scale fire tests were carried out to investigate this. Three tests in a square compartment (4.5 × 4.5 m) and two in a double-width compartment (4.5 × 9 m). The tests were conducted with a high, movable fire load density (1085 MJ/m2). While the first test was carried out in a fully encapsulated (non-combustible) compartment, the exposed timber surfaces were subsequently increased. The influence of exposed or only initially protected timber surfaces on the fire impact on the façade was investigated using the measured gas temperature, HRR, temperature on the façade, flame heights along the façade, heat flux and velocities along the façade.
There are almost no differences in the gas temperatures in the growth phase of the fire, and there are only minor differences in the temperature curves in the fully-developed fire phase. The influence of the structural fire load becomes visible afterwards. The course of the gas temperature in the decay phase is thus primarily defined by the exposed, or only initially protected timber surfaces involved in the fire (structural fire load).
In the fully-developed fire phase of a ventilation-controlled fire, the lack of oxygen governs the combustion. The more movable fire load is available, the lower the influence of the structural fire load in the fire development phase.
Additional structural fire load leads to an increase in temperatures on the façade. In these tests, maximum temperature deviations increases averaging approx. 120°C to 200°C occurred on the façade in the fully-developed fire phase. An exposed mass timber ceiling has a greater impact on the façade than exposed mass timber walls. The specific influence an exposed ceiling has on the façade fire exposure requires further investigation.
There is no significant difference in flame height between the tests. Due to the additional structural fire load, the fire is lengthened in time. The prolonged fire causes longer-lasting higher flames on the façade.
An exposed mass timber ceiling leads to higher heat fluxes on the façade than an exposed mass timber wall. The theory that the incident heat flux on the façade is approximately three times greater when a mass timber ceiling is used instead of a non-combustible ceiling could not be confirmed. The reason for this could again be the different fire load densities and the width of the opening.
Furthermore, the results of the gas flow velocity measurement on the façade support the hypothesis that the gas velocities increase with a growing structural fire load.
Overall, it is evident that the internationally available findings from full-scale fire tests are currently insufficient to conclusively clarify this issue. Since many factors such as geometry, opening factor [29, 47], arrangement of timber surfaces [47], fire load density, compartment size, protection times of linings, etc. play a decisive role, it is not possible to make any general statements at the present time. In order to further investigate and quantify this important topic, additional full-scale tests are necessary. The series of tests [48] or the unpublished parts of the CodeRed test series [26, 29] could provide further results. Unfortunately, the measurement results on the façades have not yet been published.

Acknowledgements

The research has been funded by the German Federal Ministry of Food and Agriculture through the project management agency Fachagentur Nachwachsende Rohstoffe e.V. (FNR). The Bavarian Carpenters’ Guild Association (Landesinnungsverband des Bayerischen Zimmererhandwerks) coordinated co-financing by the timber industry. All research partners staff from Technische Universität Braunschweig, Magdeburg-Stendal University of Applied Sciences and the Institute of Fire and Civil Protection Heyrothsberge involved in these tests are acknowledged. The following research staff that helped to carry out these tests successfully are gratefully acknowledged: Sven Brunkhorst, Daniel Butscher, Franziska Heumann, Björn Kampmeier, Christoph Kurzer, Markus Lechner, Michael Neske, Felix Steeger, Stefan Winter and Jochen Zehfuß as well as the students. We would also like to extend our heartfelt thanks to the TUM Fire Brigade Garching and Gumpp & Maier GmbH for their technical support.

Declarations

Conflict of interest

All authors declare that they have no conflict of interest.
Open AccessThis article is licensed under a Creative Commons Attribution 4.0 International License, which permits use, sharing, adaptation, distribution and reproduction in any medium or format, as long as you give appropriate credit to the original author(s) and the source, provide a link to the Creative Commons licence, and indicate if changes were made. The images or other third party material in this article are included in the article's Creative Commons licence, unless indicated otherwise in a credit line to the material. If material is not included in the article's Creative Commons licence and your intended use is not permitted by statutory regulation or exceeds the permitted use, you will need to obtain permission directly from the copyright holder. To view a copy of this licence, visit http://​creativecommons.​org/​licenses/​by/​4.​0/​.

Publisher's Note

Springer Nature remains neutral with regard to jurisdictional claims in published maps and institutional affiliations.
download
DOWNLOAD
print
DRUCKEN
Titel
Impact of Mass Timber Compartment Fires on Façade Fire Exposure
Verfasst von
Thomas Engel
Norman Werther
Publikationsdatum
13.12.2022
Verlag
Springer US
Erschienen in
Fire Technology / Ausgabe 2/2023
Print ISSN: 0015-2684
Elektronische ISSN: 1572-8099
DOI
https://doi.org/10.1007/s10694-022-01346-8

Appendix

An overview of the individual wall and ceiling structures used in the TIMpuls compartment full-scale fire tests is shown in Table 4.
Table 4
Overview of the Timber Constructions
Wall structures
https://static-content.springer.com/image/art%3A10.1007%2Fs10694-022-01346-8/MediaObjects/10694_2022_1346_Figb_HTML.gif
100 mm cross-laminated timber wall (five layers 20 20 20 20 20 mm) with 18 mm gypsum plasterboard type F/gypsum fiberboard
https://static-content.springer.com/image/art%3A10.1007%2Fs10694-022-01346-8/MediaObjects/10694_2022_1346_Figc_HTML.gif
150 mm cross-laminated timber wall (five layers 34 24 34 24 34 mm)
https://static-content.springer.com/image/art%3A10.1007%2Fs10694-022-01346-8/MediaObjects/10694_2022_1346_Figd_HTML.gif
140 mm light timber frame with 2 × 18 mm gypsum plasterboard type F/gypsum fiberboard
https://static-content.springer.com/image/art%3A10.1007%2Fs10694-022-01346-8/MediaObjects/10694_2022_1346_Fige_HTML.gif
140 mm light timber frame with 12 mm oriented strand board und 2 × 12.5 mm gypsum fiberboard
Ceiling structures
https://static-content.springer.com/image/art%3A10.1007%2Fs10694-022-01346-8/MediaObjects/10694_2022_1346_Figf_HTML.gif
180 mm glued-laminated timber
https://static-content.springer.com/image/art%3A10.1007%2Fs10694-022-01346-8/MediaObjects/10694_2022_1346_Figg_HTML.gif
220 mm light timber frame with 22 mm suspension and 2 × 18 mm gypsum fiberboard
Table 5 shows the fire load density to be used according to Eurocode 1 or the National Annex.
Table 5
Comparison of Statistical Fire Load Densities for Dwellings in Europe
EN 1991-1-2 [41]
Germany [31]
Denmark [49]
France [50]
Great Britain [51, 52]
Ireland [53]
Italy [54]
948 MJ/m2
1085 MJ/m2
200 MJ/m2a
930 MJ/m2
870 MJ/m2
870 MJ/m2
948 MJ/m2
80% fractile
90% quantile
80% fractile
90% quantile
80% fractile
80% fractile
80% fractile
aRelated to At, total area of enclosure (walls, ceiling and floor, including openings)
Table 6 shows the mean values of the weather data over the test time measured per minute.
Table 6
Weather Data from the Weather Station Located Directly Next to the Test Area, Shown As Mean Values of the Minute Measurements over the Test Period for Different Heights
Height
Temperature (°C)
Wind speed (km/h)
Air pressure (hPa)
1 m
0.2 m
0.5 m
1 m
2 m
5 m
10 m
V0
− 1.0
1.0
1.0
1.0
1.2
1.3
1.5
962
V1
6.8
0.7
0.7
1.1
1.2
1.4
1.3
954
V2
3.4
0.9
0.8
1.3
1.4
1.6
1.8
951
V3
10.1
1.4
1.7
1.8
1.8
1.9
2.0
961
V4
− 5.0
2.6
2.5
2.9
2.9
3.0
3.1
971
Table 7 shows the parameters for determining the HRR via the charring rate.
Table 7
Parameters for Determining the Heat Release Rate via the Charring Rate
Components
300°C on the timber surface
≤ 50°C deviation behind the lining to the compartment
Residual cross-section
Timber surface area
V1
 Exposed GLT ceiling
6 min
107 mm
20.3 m2
 Initially protected CLT walls
37 min
66 min
70 mm
37.9 m2
V2
 Exposed CLT walls
6 min
79 mm
10.8 m2
 LTF walls
63 min
81 min
115 mm
1.6 m2
 LTF ceiling
63 min
81 min
205 mm
2.9 m2
V3
 Exposed GLT ceiling
7 min
107 mma
40.5 m2
 LTF wall (2 × 12.5 mm GF + 12 mm OSB)
53 min
69 min
115 mma
10.8 m2 OSB + 1.0 m2
 LTF wall (2 × 18 mm GPF/GF + 12 mm OSB)
75 min
95 min
8 mm OSBa
10.8 m2 OSB
 LTF wall (2 × 18 mm GPF/GF)
75 min
95 min
128 mma
2.2 m2
V4
 Exposed GLT ceiling
7 min
125 mm
40.5 m2
 Exposed GLT column
7 min
175 × 175 mm
2.5 m2
 Exposed GLT beam
7 min
265 × 185 mm
6.1 m2
 Exposed CLT wall
7 min
100 mm
10.8 m2
 LTF wall (2 × 18 mm GPF/GF)
aDetermined up to the 90th minute via the 300°C isotherm of the thermocouples in the component
Figures 40, 41, 42, and 43 shows the results of the two methods for determining the HRR (mass loss vs. charring rate) for each test.
Figure 40
Results of the two methods for determining the heat release rate (mass loss vs. charring rate) for V1
Bild vergrößern
Figure 41
Results of the two methods for determining the heat release rate (mass loss vs. charring rate) for V2
Bild vergrößern
Figure 42
Results of the two methods for determining the heat release rate (mass loss vs. charring rate) for V3
Bild vergrößern
Figure 43
Results of the two methods for determining the heat release rate (mass loss vs. charring rate) for V4
Bild vergrößern

Supplementary Information

Below is the link to the electronic supplementary material.
Supplementary file1 (MP4 442219 kb)
Supplementary file2 (MP4 342455 kb)
Supplementary file3 (MP4 346897 kb)
Supplementary file4 (MP4 283337 kb)
Supplementary file5 (MP4 555306 kb)
1.
Zurück zum Zitat Reitan NK, Friquin KL, Mikalsen RF (2019) Brannsikkerhet ved bruk av krysslaminert massivtre i bygninger—en litteraturstudie. Rep. 2019:09 RISE Research Institues of Sweden, Trondheim
2.
Zurück zum Zitat Friquin KL, Reitan NK, Mikalsen RF (2019) Fire exposure on façades of cross-laminated timber buildings—a review. In: FSF 2019—3rd international symposium on fire safety of façades, Paris
3.
Zurück zum Zitat Brandon D, Just A, Andersson P, Östman B (2018) Mitigation of fire damages in multi-storey timber buildings - statistical analysis and guidelines for design. Rep. RISE Report 2018:43, RISE Research Institues of Sweden, Stockholm
4.
Zurück zum Zitat Göldner M (2021) Evaluation of fire and hazard prevention measures - Part 4: Determination and evaluation of quantified propagation factors (Evaluierung der Maßnahmen des vorbeugenden Brand- und Gefahrenschutzes—Teil 4: Ermittlung und Bewertung quantifizierter Ausbreitungsfaktoren). Master Thesis, Technical University of Munich
5.
Zurück zum Zitat Maiworm B (2021) Göldner M (2021) Einsatzstellenbegehungen—Fokus: Hat das Gebäude funktioniert? Braunschweiger Brandschutz-Tage 241:63–82
6.
Zurück zum Zitat Gorska C (2019) Fire dynamics in multi-scale timber compartments. Dissertation, The University of Queensland
7.
Zurück zum Zitat Gorska C, Hidalgo JP, Torero JL (2021) Fire dynamics in mass timber compartments. Fire Saf J https://​doi.​org/​10.​1016/​j.​firesaf.​2020.​103098CrossRef
8.
Zurück zum Zitat Nothard S, Lange D, Hidalgo J P, Gupta V, McLaggan M S (2020) The response of exposed timber in open plan compartment fires and its impact on the fire dynamics. In: SiF 2020—The 11th international conference on structures in fire, Brisbane. https://​doi.​org/​10.​14264/​5d97785
9.
Zurück zum Zitat Bartlett AI, Kanellopoulos G, Law A (2019) Heat flux distribution on a facade from timber-lined compartments. In: 15th International conference and exhibition on fire science and engineering (Interflam 2019), 1995–2002, London
10.
Zurück zum Zitat Berger H (2021) Investigation of the effects between full scale and small scale fire tests (Untersuchung der Skalierungseffekte bei Brandversuchen). Master Thesis, Technical University of Munich
11.
Zurück zum Zitat Maag T, Fontana M (2000) Brandversuche an Modulhotels in Holzbauweise. Report, Swiss Federal Institute of Technology ETH Zurich, Zurich. https://​doi.​org/​10.​3929/​ethz-a-004031004CrossRef
12.
Zurück zum Zitat Frangi A, Fontana M (2005) Fire performance of timber structures under natural fire conditions. Proc Fire Saf Sci 8:279–290. https://​doi.​org/​10.​3801/​IAFSS.​FSS.​8-279CrossRef
13.
Zurück zum Zitat Su J, Lougheed GD (2014). Fire safety summary - Fire research conducted for the project on mid-rise wood construction. Client Report A1-004377.1, National Research Council Canada
14.
Zurück zum Zitat Hakkarainen T (2002) Post-flashover fires in light and heavy timber construction compartments. J Fire Sci 20:133–175. https://​doi.​org/​10.​1177/​0734904102020002​074CrossRef
15.
Zurück zum Zitat Su J, Leroux P, Lafrance P-S, Berzins R, Gratton K, Gibbs E, Weinfurter M (2018). Fire testing of rooms with exposed wood surfaces in encapsulated mass timber construction. Client Report A1-012710.1, National Research Council Canada
16.
Zurück zum Zitat Hadden RM, Bartlett AI, Hidalgo JP, Santamaria S, Wiesner F, Bisby LA, Deeny S, Lane B (2017) Effects of exposed cross laminated timber on compartment fire dynamics. Fire Saf J 91:480–489. https://​doi.​org/​10.​1016/​j.​firesaf.​2017.​03.​074CrossRef
17.
Zurück zum Zitat Su J, Lafrance P-S (2018). Fire safety challenges of tall wood buildings—phase 2: task 2 & 3—cross laminated timber compartment fire tests. NFPA Rep. No. FPRF-2018-01. NRC Rep. No. A1-012710.1, National Research Council Canada
18.
Zurück zum Zitat Épernon Fire Tests Programme (2020) Synthesis Report; Report No. EFTP-2020/01, October 13, 2020. http://​www.​epernon-fire-tests.​eu/​
19.
Zurück zum Zitat Bartlett A, Law A, McNamee RJ, Zehfuss J, Mohaine S, Tessier C, Bisby L (2019) Heat fluxes to a façade resulting from compartment fires with combustible and non-combustible ceilings. In: FSF 2019—3rd international symposium on fire safety of façades, Paris
20.
Zurück zum Zitat Robert F et al (2019) ÉPERNON FIRE TESTS PROGRAMME—Test Report No. 013598: CLT slab (Natural Fire Test—Scenario 2), CERiB FireTesting Centre, France. http://​www.​epernon-fire-tests.​eu
21.
Zurück zum Zitat Robert F et al (2019) ÉPERNON FIRE TESTS PROGRAMME—Test report No. 013597: CLT slab (Natural Fire Test—Scenario 2), CERiB FireTesting Centre, France. http://​www.​epernon-fire-tests.​eu
22.
Zurück zum Zitat Robert F et al (2019) ÉPERNON FIRE TESTS PROGRAMME—Test Report No. 013599: CLT slab (Natural Fire Test—Scenario 2), CERiB FireTesting Centre, France. http://​www.​epernon-fire-tests.​eu
23.
Zurück zum Zitat Robert F et al (2019) ÉPERNON FIRE TESTS PROGRAMME - Test report n° 013600: CLT slab (Natural Fire Test—Scenario 2), CERiB FireTesting Centre, France. http://​www.​epernon-fire-tests.​eu
24.
Zurück zum Zitat Brandon D, Sjöström J, Temple A, Hallberg E, Kahl F (2021) Final project report—fire safe implementation of visible mass timber in tall buildings—compartment fire testing. RISE Report 2021:40, RISE Research Institues of Sweden
25.
Zurück zum Zitat Sjöström J, Brandon D, Temple A, Hallberg E, Kahl F (2021) Exposure from mass timber compartment fires to facades. RISE Report 2021:39, RISE Research Institues of Sweden
26.
Zurück zum Zitat Kotsovinos P, Rackauskaite E, Christensen E, Glew A, O’Loughlin E, Mitchell H, Amin R, Robert F, Heidari M, Barber D, Rein G, Schulz J (2022) Fire dynamics inside a large and open-plan compartment with exposed timber ceiling and columns: CodeRed #01. Fire Mater. https://​doi.​org/​10.​1002/​fam.​3049CrossRef
27.
Zurück zum Zitat Rackauskaite E, Bonner M, Restuccia F et al (2021) Fire experiment inside a very large and open-plan compartment: x-ONE. Fire Technol 58:905–939. https://​doi.​org/​10.​1007/​s10694-021-01162-6CrossRef
28.
Zurück zum Zitat Heidari M (2021) Travelling fires methodology and probabilistic design of structures. PhD thesis. Imperial College London
29.
Zurück zum Zitat Kotsovinos P, Christensen EG, Rackauskaite E, Glew A, O’Loughlin E, Mitchell H, Amin R, Robert F, Heidari M, Barber D, Rein G, Schulz J (2022) Impact of ventilation on the fire dynamics of an open-plan compartment with exposed timber ceiling and columns: CodeRed #02. Fire Mater. https://​doi.​org/​10.​1002/​fam.​3082CrossRef
30.
Zurück zum Zitat Engel T, Brunkhorst S, Steeger F, Butscher D, Kurzer C, Werther N, Winter S, Zehfuß J, Kampmeier B, Neske M (2022) Schlussbericht zum Verbundvorhaben TIMpuls—Brandschutztechnische Grundlagenuntersuchung zur Fortschreibung bauaufsichtlicher Regelungen im Hinblick auf eine erweiterte Anwendung des Holzbaus. Fachagentur Nachwachsende Rohstoffe; Gülzow-Prüzen. https://​doi.​org/​10.​14459/​2022md1661419
31.
Zurück zum Zitat German Institute for Standardization (2015) DIN EN 1991-1-2/NA National Annex—Nationally determined parameters—Eurocode 1: actions on structures—Part 1–2: general actions—actions on structures exposed to fire. German Institute for Standardization, Berlin
32.
Zurück zum Zitat European Committee for Standardization (2013) EN 60584-1 Thermocouples—Part 1: EMF specifications and tolerances (IEC 60584-1:2013). European Committee for Standardization, Brussels
33.
Zurück zum Zitat European Committee for Standardization (2020) EN 1363-1:2020 Fire resistance tests—Part 1: general requirements. European Committee for Standardization, Brussels
34.
Zurück zum Zitat Starke H (2009) Kalibrierung von bidirektionalen Sonden—calibration of bidirectional probes. Jahresbericht 2006/2007/2008, IdF Sachsen-Anhalt, Heyrothsberge 2009
35.
Zurück zum Zitat Brunkhorst S, Zehfuß J, Engel T, Kurzer C, Werther N, Steeger F, Butscher D (2021) TIMpuls Grossversuche an Holzbauten. Braunschweiger Brandschutz-Tage 2021
36.
Zurück zum Zitat Standard E (2009) Eurocode 5: Design of timber structures—part 1–2: general—structural fire design; German version EN 1995-1-2:2004 + AC:2009. European Committee for Standardization, Brussels
37.
Zurück zum Zitat European Committee for Standardization (2019) EN 13381-7 Test methods for determining the contribution to the fire resistance of structural members—Part 7: applied protection to timber members. European Committee for Standardization, Brussels
38.
Zurück zum Zitat Ahrens J (2021) Influence of the immobile fire load on the fire effect on the façade (Einfluss der immobilen Brandlast auf die Brandeinwirkung auf der Fassade). Master Thesis, Technical University of Munich
39.
Zurück zum Zitat Häggkvist A, Sjöström J, Wickström U (2021) Using plate thermometer measurements to calculate incident heat radiation. J Fire Sci 31(2):166–177. https://​doi.​org/​10.​1177/​0734904112459264​CrossRef
40.
Zurück zum Zitat Ingason H, Wickström U (2007) Measuring incident radiant heat flux using the plate thermometer. Fire Saf J 42:161–166. https://​doi.​org/​10.​1016/​j.​firesaf.​2006.​08.​008CrossRef
41.
Zurück zum Zitat European Standard (2009) Eurocode 1: Actions on structures—Part 1–2: general actions—actions on structures exposed to fire; EN 1991-1-2:2002 + AC:2009
42.
Zurück zum Zitat Engel T, Werther N (2020) Analyse der zulässigen Brandausbreitung über die Fassade. Bautechnik 97:558–565. https://​doi.​org/​10.​1002/​bate.​202000007CrossRef
43.
Zurück zum Zitat European Commission (1994) Communication of the Commission with regard to the interpretative documents of Council Directive 89/106/EEC (94/C 62/01). Official Journal of the European Communities
44.
Zurück zum Zitat NFPA (2016) NFPA 14—Standard for the Installation of Standpipe and Hose Systems
46.
Zurück zum Zitat Morris B (1999) Fire spread in multi-storey buildings with glazed curtain wall facades. (LPR 11: 1999), Loss Prevention Council, Borehamwood, England
47.
Zurück zum Zitat Brunkhorst S, Zehfuß J (2020) Experimental and numerical analysis of fire development in compartment fires with immobile fire load. In: International scientific conference on woods & fire safety. https://​doi.​org/​10.​1007/​978-3-030-41235-7_​28
48.
Zurück zum Zitat Hopkin D, Wegrznski W, Spearpoint M, Fu I, Krenn H, Sleik T, Gorska C, Stapf G (2022) Large-scale enclosure fire experiments adopting CLT slabs with different types of polyurethane adhesives: genesis and preliminary findings. Fire 5:39. https://​doi.​org/​10.​3390/​fire5020039CrossRef
49.
Zurück zum Zitat DS/EN 1991-1-2 DK NA:2014 National Annex to Eurocode 1: actions on structures—Part 1–2: general actions—actions on structures exposed to fire
50.
Zurück zum Zitat NF EN 1991-1-2/NA:2007 Annexe nationale à la Eurocode 1—Actions sur les structures—Partie 1–2 : Actions générales—Actions sur les structures exposées au feu
51.
Zurück zum Zitat NA to BS EN 1991-1-2:2002 UK National Annex to Eurocode 1: Actions on structures—Part 1–2: general actions—actions on structures exposed to fire
52.
Zurück zum Zitat PD 6688-1-2:2007 Background paper to the UK National Annex to BS EN 1991-1-2
53.
Zurück zum Zitat N.A. to I.S. EN 1991-1-2:2002 Irish National Annex to Eurocode 1: actions on structures—Part 1–2: general actions—actions on structures exposed to fire
54.
Zurück zum Zitat Appendice Nazionale Italiana alla UNI EN 1991-1-2:2005 Parametri adottati a livello nazionale da utilizzare per le strutture esposte al fuoco